091 / 43 43 505
SVETA NEDELJA, Janjić dol-posl hala i građ parcela
1.250.000,00 €
  • Namjena
  • Prodaja
  • Id Objekta
  • 1920
  • Vrsta nekretnine
  • Poslovni prostor
  • Županija
  • Zagrebačka
  • Mjesto
  • Sveta Nedelja
  • Energetski Certifikat
  • D
  • Površina u m2
  • 800,00
  • Broj sanitarnih čvorova
  • 2
Opis nekretnine
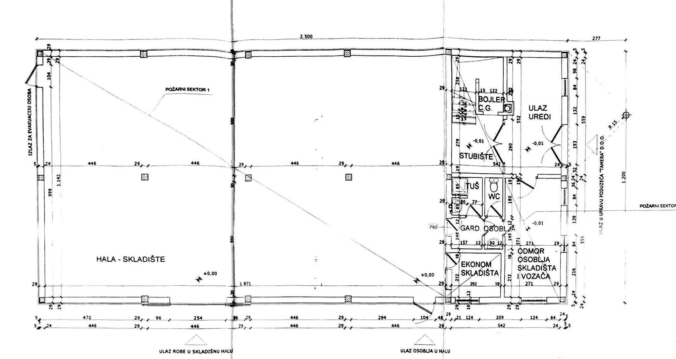
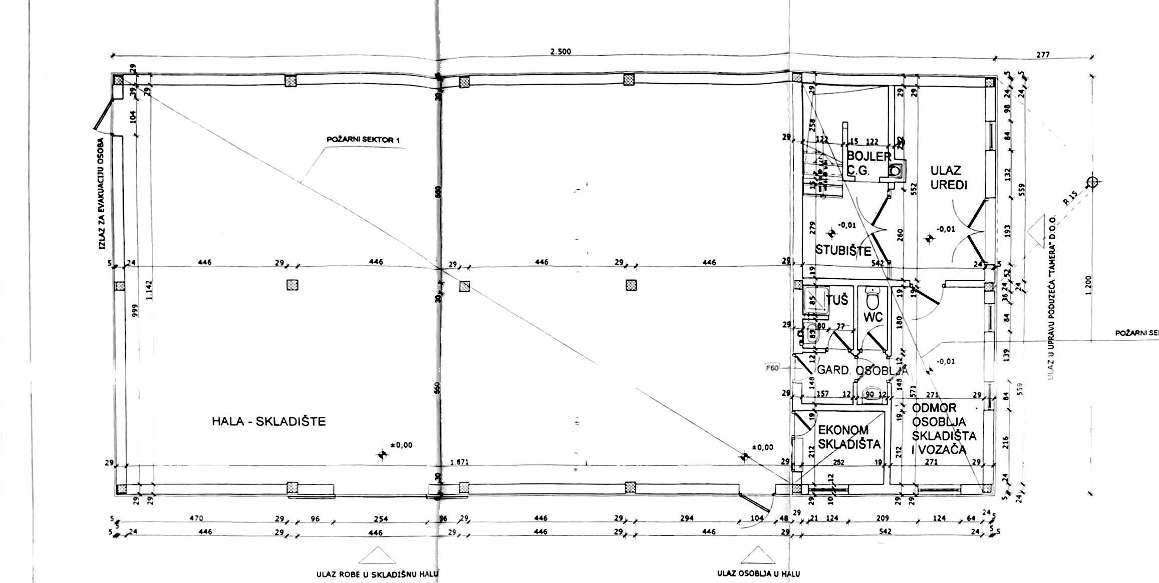
SVETA NEDELJA, Janjić dol. - ukupna površina parcela 5.565 m2. Na jednoj od parcela (pov. 1675 m2) izgrađen je poslovni kompleks koji se sastoji od skladišno- proizvodne hale (pov 800 m2) i uredskih prostorija raspoređenih na dva nivoa. Skladišno - proizvodna hala je izgrađena po svim standardima za takve vrste objekata. Ugrađena su industrijska vrata te je osiguran pristup šleperima. Uredski dio ima ukupnu površinu od 120 m2 te se sastoji u prizemnom dijelu od jedne uredske prostorije, garderobe i sanitarnih prostora za zaposlenike te priručnog skladište. Na I. katu nalaze se dva ureda, čajna kuhinja te sanitarne prostorije. Objekt je priključen na električnu mrežu, vodovod, te kanalizaciju. Druga parcela (pov 3890 m2) ima građevinsku namjenu. Kupac plaćaagencijsku proviziju u visini 2% od ugovorene kupopordajne cijene uvećano za iznos PDVa. Za više informacija molimo kontaktirajte agenciju.
  • Kotlovnica na plin
  • Klima uređaj
  • Građevinska dozvola
  • Uporabna dozvola
  • Vlasnički list
  • Gradski plin
  • Gradski vodovod
  • Gradska kanalizacija
  • Blizina busa
  • Čajna kuhinja
  • Video nadzor
  • Uredski namještaj
Zanima Vas ova nekretnina?
Pošaljite nam upit s Vašim podacima, a mi ćemo Vam se javiti u najkraćem mogućem roku putem emaila ili telefona.
Dogodila se pogreška, molimo pokušajte ponovno.
Zahvaljujemo Vam na poslanom upitu.
Sa zadovoljstvom ćemo odgovoriti u najkraćem mogućem roku.
*
*